Продается дом, 60 кв.м., /1 эт

4 800 000
Тип строенияДом
Площадь, кв.м.60
Площадь участка, сот6
Этажность1
Материал стендругой

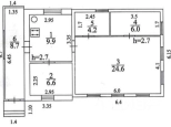
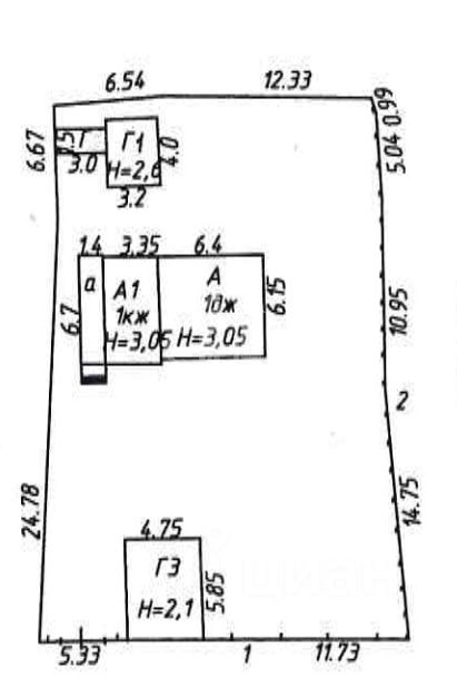
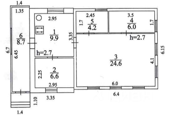
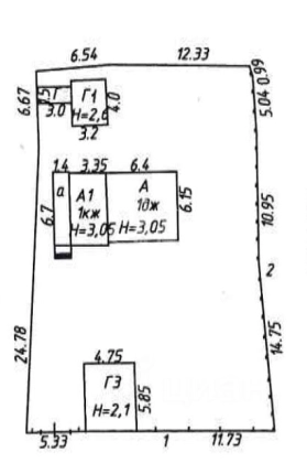
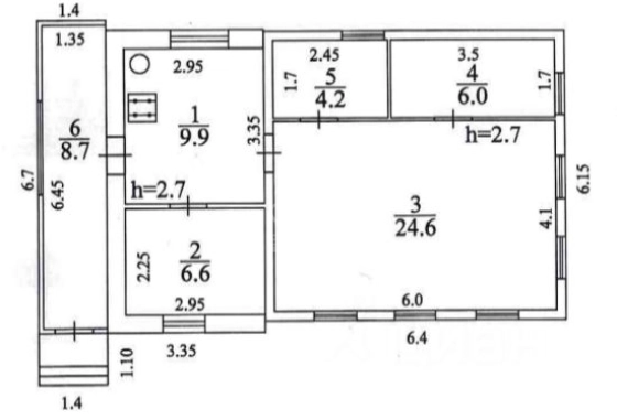
Продается ДОМ на ул.Зелёная (район Малинники). Общая лощадь 60 кв.м., дом деревянный 1957 года постройки, расположен на участке 6,35 сотки. Участок ровный, правильной прямоугольной формы ( 20 х 30 метров). Заведены все коммуникации: газ индивидуальное отопление ОАГВ; горячая вода - колонка; водоснабжение, канализация, электричество. В доме три комнаты 35 кв.м., кухня 10 кв.м , санузел 6 кв.м., прихожая, есть небольшой подвал. На участке имеется колодец с питьевой водой, кирпичный гараж 5,8 х 4,7м., растут плодовые деревья и ягодные кустарники. Асфальтированный подъезд, перед домом площадка для автомобиля. Развитая инфраструктура: детские сады, школы, поликлиника, магазины, аптеки, пункты выдачи, строительная база, автосалоны, транспортная доступность всё для комфортного проживания. Дом требует реконструкции, что дает возможность построить новый объект по вашим предпочтениям. Идеальное место для проживания! Готовы к обсуждению ваших предложений и хорошему торгу. Объект 18840

РасположениеКалуга, улица Зеленая, 34

Важно! На карте не всегда указано точное местоположение. Более точную информацию можно узнать у менеджера, разместившего объект