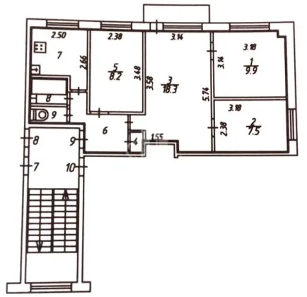
Продается 4-х комн. квартира, 58.5 кв.м., 3/5 эт
Обзор№ - 18620
| Стоимость | 3 900 000 |
|---|---|
| Комнат в квартире | 4 |
| Площадь, кв.м. | 58.5 |
| Жилая площадь | 43 |
| Площадь кухни, кв.м. | 5 |
| Этаж | 3 |
| Этажность | 5 |
| Материал стен | Панельный |
Адрес
| Населенный пункт | Калуга |
|---|---|
| Район города | микрорайон Турынино |
| Улица | улица Советская |
| Номер дома | 6 |
В избранное 4-к квартира, ул. Советская, 6
Продается 4х комнатная квартира в Турынино-1. Панельный дом. Сделан косметический ремонт, кроме туалета и ванной. Пластиковые окна. Линолеум. Квартира угловая, но теплая. Произведено утепление внешней стены. Колонка. Установлен счетчик холодной воды. Домофон. Входная дверь: железная и деревянная. Во дворе огороженная детская площадка, уголок со спортивными тренажерами, наземный карман для парковки вдоль всего дома. В доме отделение почты. Возле дома остановка общественного транспорта. Рядом торговый центр. Удобный выезд на окружную дорогу. Тихие соседи. Не приобретен на маткапитал. В собственности более 10 лет. Один собственник. Объект 18620

























